























































Get additional information including price lists and floor plans.
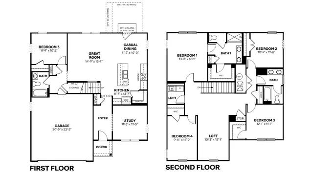
Welcome home to the Henley, a family friendly home design with 5 bedrooms and 3 baths available in Fortville, Indiana! This two-story home provides 9 first floor walls and Hardie fiber cement siding. One bedroom and full bath are situated on the first floor, making it ideal for guests or multi-generational living. A spacious study or home office is situated in the front of the home. The staircase enters from the family room for convenience and privacy. The kitchen offers beautiful 42 cabinetry, large pantry, and a center island with ample seating space. Upstairs, you'll find 4 additional bedrooms, including one that features a walk-in closet, as well as a loft. Like all D.R. Horton homes, this home includes America's Smart Home Technology featuring a video doorbell, smart Honeywell thermostat, smart door lock, Deako light package and more. Photos are r...
Stay informed with Livabl updates on new community details and available inventory.