










































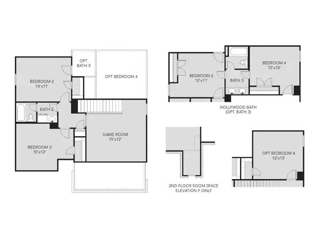
The Tivoli plan is a 2-story home with 3 bedrooms, 2.5 baths, Flex Room, and 2-car garage. It features a convenient kitchen island with space for high-top seating, spacious walk-in closet, dedicated upstairs game room, dedicated laundry room, and additional flex room that can be converted into an office, workout space, arts & crafts area, and more.
Stay informed with Livabl updates on new community details and available inventory.