























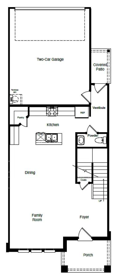
The Hazlenut is a two-story, approx 1,706 sq. ft., 3-bedroom, 2.5-bathroom floor plan with a 2 car rear-entry garage. The inviting front porch and entry leads to a foyer which opens to the spacious living area. The living area is located adjacent to the open kitchen and dining area. Enjoy preparing meals and spending time together gathered around the large kitchen island. The kitchen features granite countertops, stainless steel appliances with electric cooking range, and corner walk-in pantry. The kitchen leads to the backyard & relaxing covered patio. The bedroom 1 suite, two secondary bedrooms, and a secondary full bathroom are located upstairs. The Laundry room is also located conveniently upstairs. Additional features include covered patio off the kitchen, and Ceramic tile flooring at Entry, Hallways (per plan), Kitchen/Breakfast, Family Room, Utility ...
Stay informed with Livabl updates on new community details and available inventory.