




















































Get additional information including price lists and floor plans.
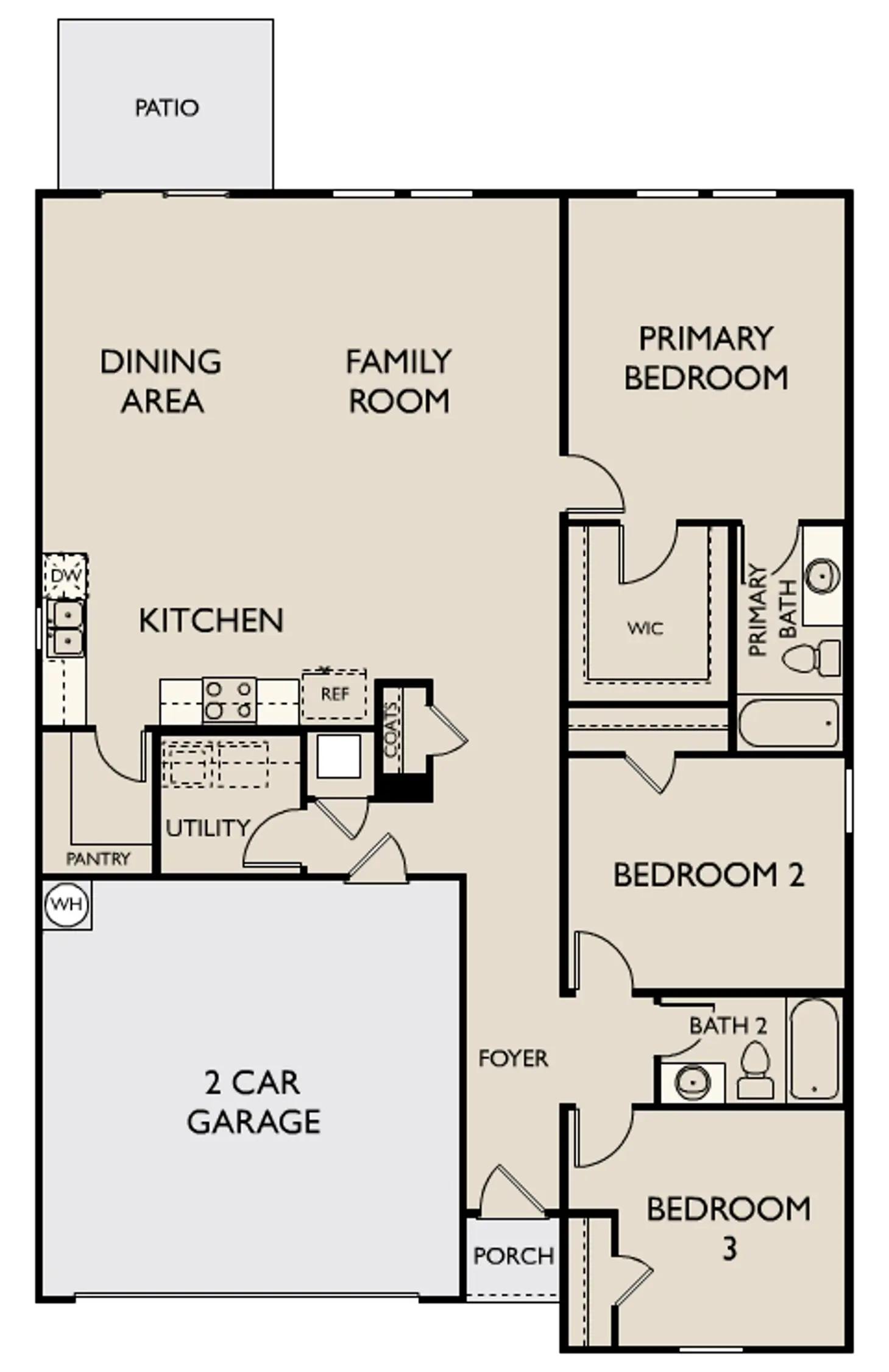
Step into the foyer, where two bedrooms with a shared bath are located at the front of the home. As you continue down the hallway, youll pass the laundry room and access to the two-car garage before entering the open-concept kitchen, family room, and dining area. A covered patio sits just off the dining space, and tucked away on the opposite side of the family room is the primary bedroom, complete with a walk-in closet and a primary bath.
Stay informed with Livabl updates on new community details and available inventory.