











Images unavailable
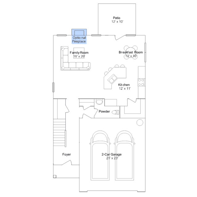
This new two-story home delivers modern comfort with ample room to grow and entertain. Upon entry is a double-height foyer that flows to a spacious open-concept design situated among the family room, modern kitchen and breakfast room, perfect for seamless everyday living. An intimate rear patio offers serene outdoor moments. The second level is occupied by a large loft for additional shared living space and all four bedrooms, including the private owners suite with a full-sized bathroom. A two-car garage completes the home.