hero-image-0
hero-image-1
hero-image-2
hero-image-3
hero-image-4
hero-image-5

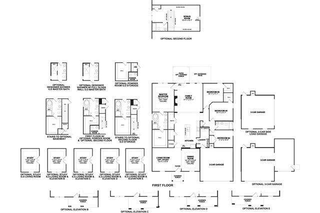
Bellamy Plan

By

M/I Homes

   |   

Covington

Covington
Sold
Sold
4
3
From 2,789
Bellamy Plan details
Bellamy Plan is now sold.
Check out available nearby plans below.