











































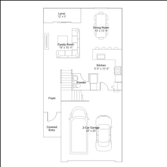
On the first floor of this new two-story design is a modern and open layout that seamlessly joins together a peninsula-style kitchen, an airy dining room and a spacious family room. Through glass sliders is an intimate lanai for outdoor moments. Upstairs, a central loft divides the two secondary bedrooms from the tranquil owners suite, which is comprised of a large bedroom, adjoining bathroom and an oversized walk-in closet.