







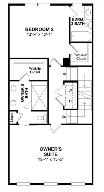
3 bedrooms / 3 full 2 half baths Full brick exterior per plan 2 car garage Open Concept Floorplan with Mid-Kitchen Designer finishes GE Stainless steel appliances and custom wood hood vent Timberlake Maple Cabinetry Quartz or granite countertops and vanities Rooftop Terrace Source: Integrity Homes
Stay informed with Livabl updates on new community details and available inventory.