
























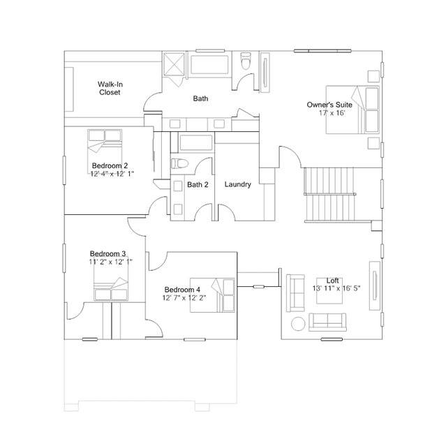
The first level of this two-story home is host to a spacious open floorplan shared between the Great Room, kitchen and dining room. Sliding glass doors lead to the outdoor space, while an office is ideal for working from home or getting paperwork done. A versatile loft is situated on the second floor, providing additional shared living space. Four bedrooms surround the loft, including the owners suite which features a restful bedroom, en-suite bathroom and walk-in closet.