














































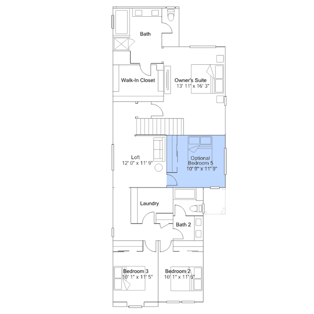
Enjoy a spacious home in this two-story design. On the first floor is a convenient bedroom and full bathroom, along with an expansive open layout shared by the kitchen with island, dining room and Great Room. Upstairs hosts a central loft space, or optional fifth bedroom at select homesites, along with three more bedrooms. The luxe owner's suite enjoys plenty of bedroom space, along with a spa-like bathroom and roomy walk-in closet.