



















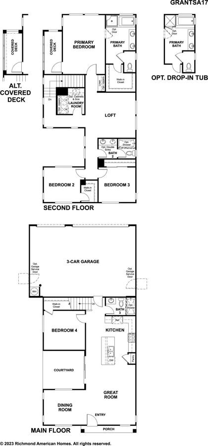
The Grant plan offers two stories of thoughtful living space. An inviting porch leads guests into an open main-floor layout featuring a generous dining area, an expansive great room, a convenient bedroom and a beautiful courtyard. An inspired kitchen showcases a roomy pantry and a center island. A bath with an optional shower and a 3-car garage with optional service doors can also be found on this level. Upstairs, enjoy an airy loft, a central laundry with optional cabinets and three bedrooms, including an impressive primary suite with a covered deck, walk-in closet and private bath with dual sinks.