






























































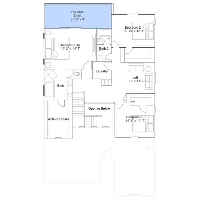
Featuring Lennars signature Next Gen suite, this home is ideal for multigenerational households. The private attached suite includes a living space, kitchenette, bedroom, bathroom and laundry. In the main home, an open floorplan is shared between the living and dining spaces, while the second level is host to a loft and three bedrooms.