

































































Get additional information including price lists and floor plans.
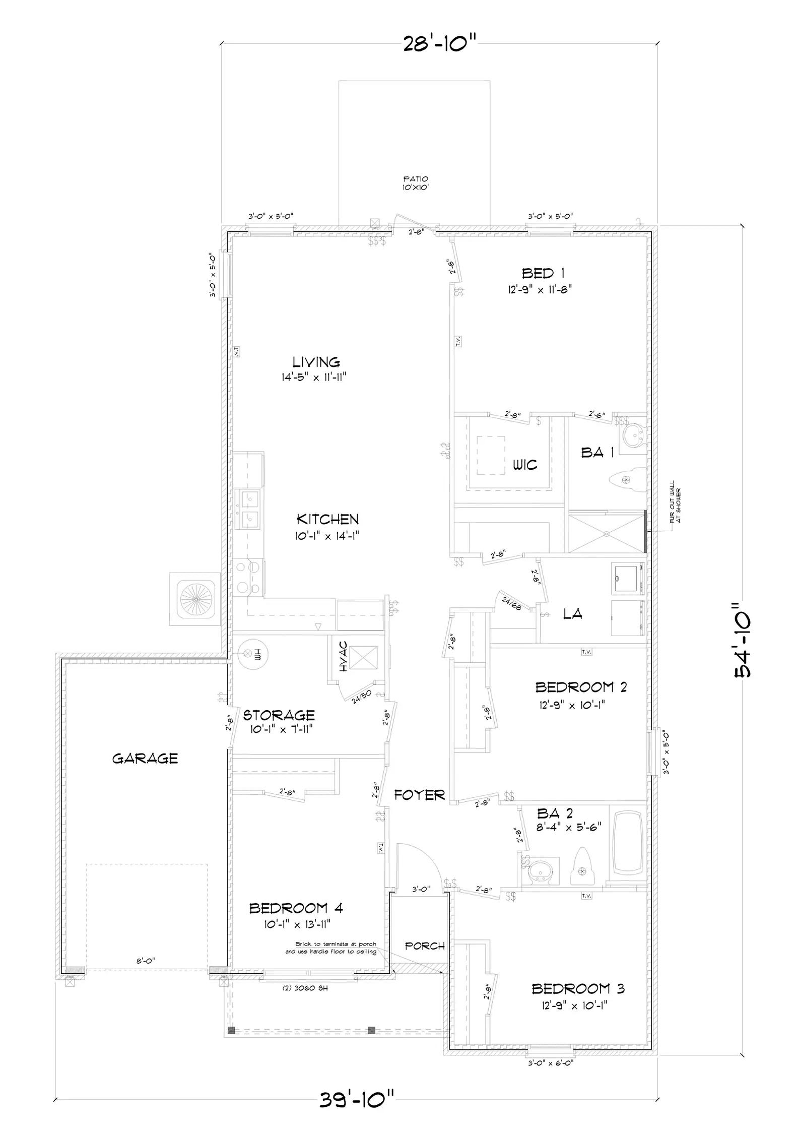
The Sullivan is a single-story floor plan featured in Bienville Landing of Foley, Alabama. With multiple exterior options to choose from, the Sullivan is an eye-catcher. This 4-bedroom, 2-bathroom, one-car garage floor plan boasts 1,417 square feet and features an inviting foyer that leads passed the bedrooms and into a spacious kitchen illuminated with natural light. The kitchen is equipped with shaker-style cabinets, stainless-steel appliances, granite countertops, a pantry for extra storage, and plenty of counter space for all your cooking needs. The open-concept layout blends the living, kitchen, and dining areas together, making it perfect for everyday living and entertainment. Connected to the great room, the spacious primary bedroom features a walk-in closet and an ensuite bathroom with granite countertops and an enclosed shower. The generous bedrooms t...
Stay informed with Livabl updates on new community details and available inventory.