

























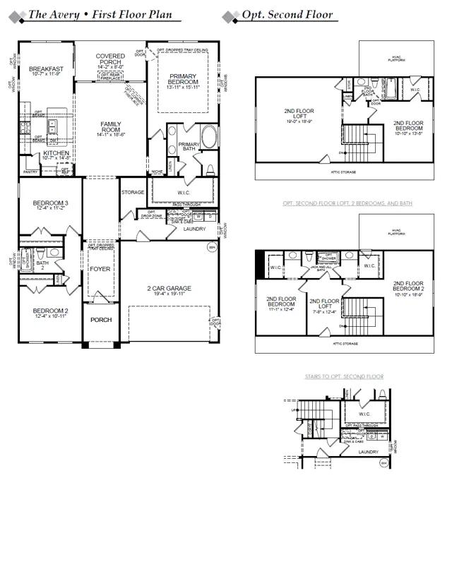
The Avery is a ranch style plan with three bedrooms two full baths a spacious family room a kitchen with an island and pantry a covered patio an oversized laundry room and a first floor primary suite. Options available to personalize this home include a covered porch screen porch or sunroom office with French doors or dining room instead of bedroom three powder room an extended family room and an optional second floor with loft bedroom and bath options.
Stay informed with Livabl updates on new community details and available inventory.