





























Schedule a self-guided tour and experience your potential new home at your own pace.

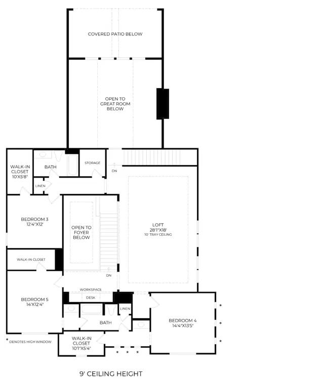
The Luxembourg model is a two-story single-family home that exudes elegance and sophistication. Upon entry, the foyer with its grand tray ceiling sets an impressive tone, leading into the airy great room with its vaulted ceilings and fireplace. Embrace the luxury of main-level living with a sumptuous primary suite featuring dual vanities, freestanding tub, luxurious shower, private water closet, and walk-in closet on the first floor. A gourmet kitchen awaits culinary enthusiasts complete with an island for convenient meal prep or casual dining along with a spacious butler's pantry connected to the formal dining room. This design also features an office for work-at-home convenience while additional amenities include an everyday entryway from garage to easily accessible laundry room space on main level and expansive outdoor area featuring covered patio.
Stay informed with Livabl updates on new community details and available inventory.