










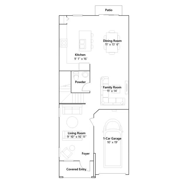
This new two-story townhome features a gracious and flexible floorplan. Upon entry is a formal living room to greet residents, followed by an open-concept layout merging the family room, dining room and kitchen together to deliver seamless transitions between spaces. Ideally situated on the top level are all three bedrooms to provide restful retreats, including the owners suite with a convenient bathroom and walk-in closet.
Stay informed with Livabl updates on new community details and available inventory.