

































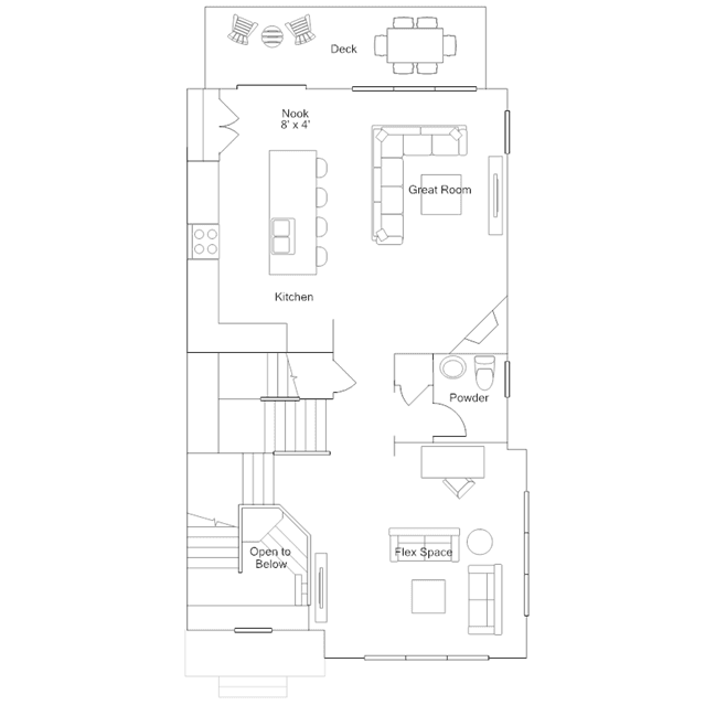
A finished basement offers a secondary gathering space in this three-story home, with direct access to a convenient powder room and two-car garage. The second level offers an open layout among the gourmet-style kitchen, nook and Great Room with a charming corner fireplace. Nearby, a spacious flex room is perfect as an office area and a deck offers relaxing outdoor moments. The third floor hosts all three bedroomsincluding the sprawling owners suite with a full-sized bathroom.