







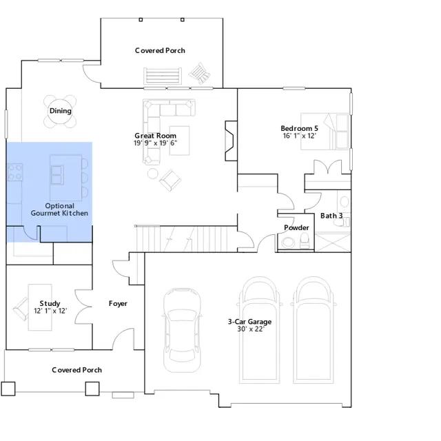
A sophisticated take on a modern layout, this spacious two-story home offers endless possibilities. A versatile study is attached to the foyer by French doors while down the hallway is an expansive open-concept living area with access to a covered porch. On the same level is a bedroom ideal for overnight guests. Residing upstairs are the remaining four bedrooms centered around a large loft, including the lavish owners suite. Rounding out the home is a desirable three-car garage.