



























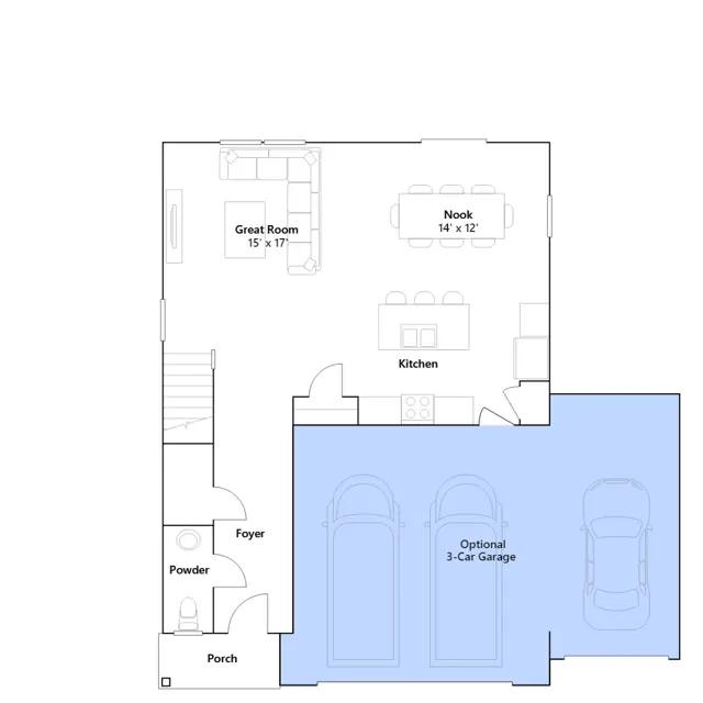
This two-story home leads directly to the open Great Room, kitchen and dining area, arranged in a thoughtful layout great for family gatherings and entertaining friends. The second floor has four bedrooms, including the owners suite, and a loft for additional living space.
Stay informed with Livabl updates on new community details and available inventory.