hero-image-0

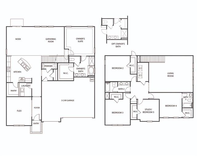
Dancourt Plan

By

D.R. Horton

   |   

Creekstone

Creekstone
Sold
Sold
5
3
1
From 3,527
unit-banner-imageunit-banner-imageunit-banner-image
Dancourt Plan details
Dancourt Plan is now sold.
Check out available nearby plans below.