











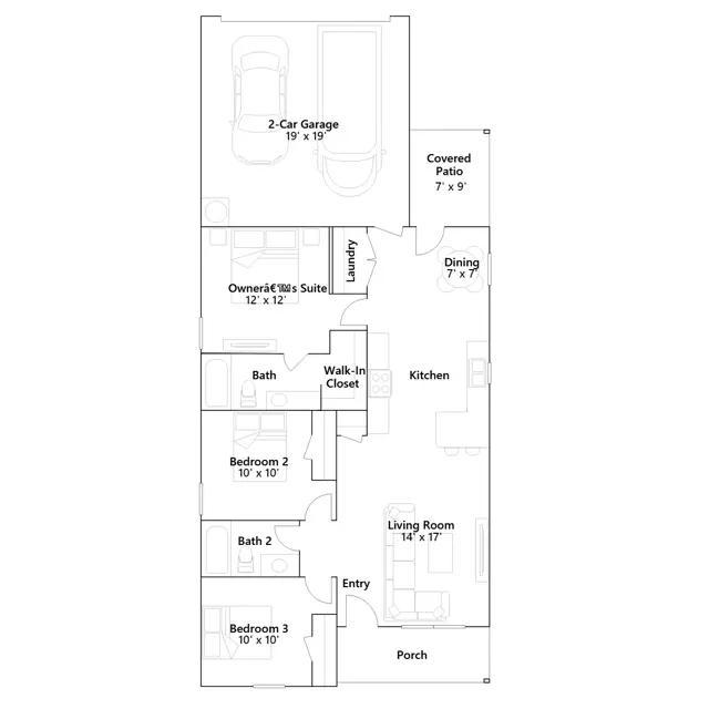
This modern single-story home opens to a welcoming living room with shared access to a fully equipped kitchen, intimate dining area and covered patio, ideal for seamless indoor-outdoor living. Tucked to the side of the kitchen is the owners suite with an attached bathroom and walk-in closet. Two secondary bedrooms are located at the opposite end of the home to provide peaceful retreats.
Stay informed with Livabl updates on new community details and available inventory.