











































Get additional information including price lists and floor plans.


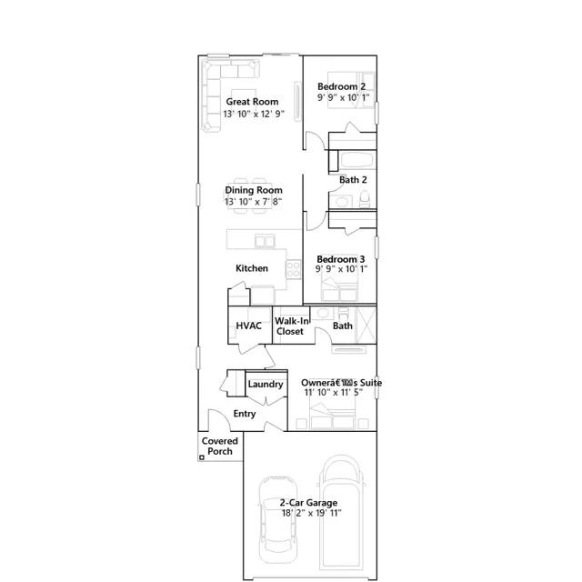
This single-level home boasts a low-maintenance and modern design. The owners suite is tucked away at the front of the home, offering access to an en-suite bathroom and walk-in closet. An open-concept layout blends the kitchen, dining room and Great Room to maximize interior space. Two secondary bedrooms are situated to the side of the home for enhanced comfort and privacy.
Stay informed with Livabl updates on new community details and available inventory.