






































































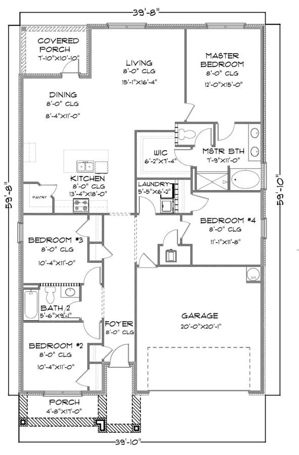
Welcome to the popular Cali floorplan in our beautiful Fairhope community of Laurelbrooke. The Cali offers a great open-concept boasting 4 bedrooms, 2 bathrooms, and a 2-car garage. It is a one-story home with 1,791 square feet of space. As you enter the Cali, the foyer leads to the fabulous open kitchen featuring a walk-in pantry and large island (with overhang) that overlooks the dining and living room combination leading outside to a covered porch for an extended living and entertaining space. The Private Suite is filled with natural light from large windows creating an inviting, spacious retreat. It features a large bedroom with ensuite, double bowl vanity, 5 shower, soaking tub and large walk-in closet. The second and third bedrooms are to the front of the home, on either side of the second full bath. The fourth bedroom is directly across from the secon...
Stay informed with Livabl updates on new community details and available inventory.