















































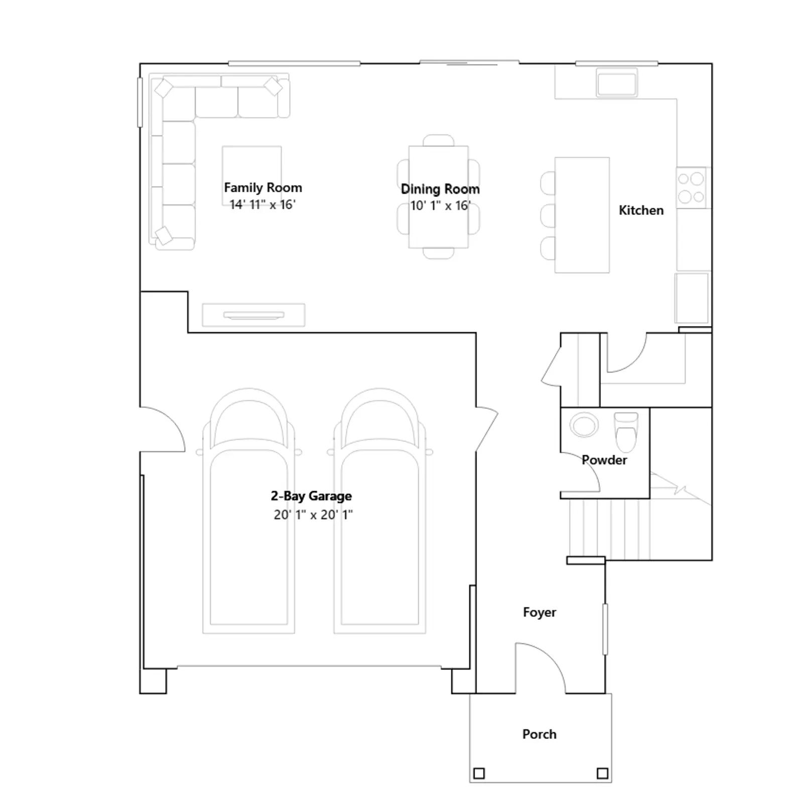
This new two-story home features a modern and spacious layout with an open-concept floorplan on the first floor that combines the kitchen with the living and dining areas. Four bedrooms can be found upstairs, including the luxurious owners suite with a spa-inspired bathroom and generous walk-in closet.
Stay informed with Livabl updates on new community details and available inventory.