






































































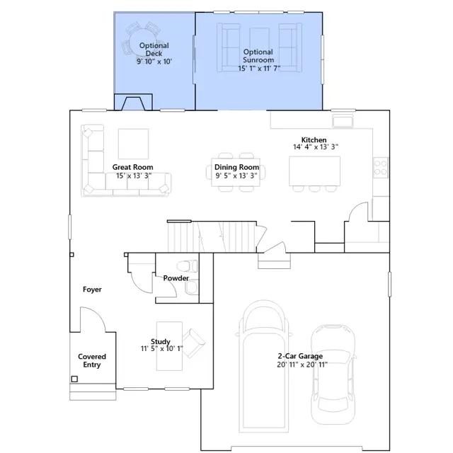
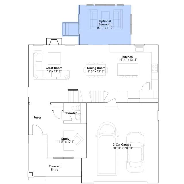
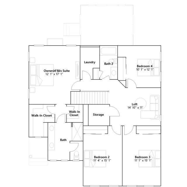
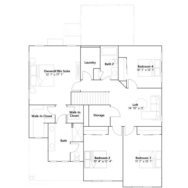
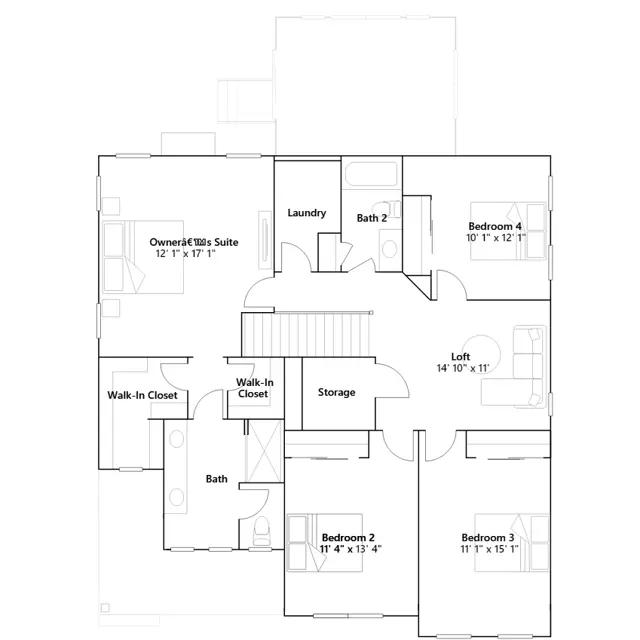
This new single-family home is an elevated take on a classic design. Showcasing an open-plan layout shared among the inviting Great Room with a fireplace, a lovely dining room and a fully equipped kitchen, along with a private study on the same level. The second floor presents a versatile loft, three secondary bedrooms and a lavish owners suite, which comes complete with an attached bathroom and large closet.
Stay informed with Livabl updates on new community details and available inventory.