































































Get additional information including price lists and floor plans.
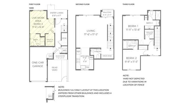
This three story condominium FLEX floorplan has 3 bedrooms and 3.5 bathrooms and consists of 1,497 square feet of net living area. When you step into this home, you will be greeted by a versatile space that can be used as a live/work area designed for your entrepreneurial needs, or a bedroom designed as a ground level ensuite, offering a bathroom with a sink and combination tub and shower, as well as a walk-in closet. The separate entry to the home greets you to a staircase leading you into the living and dining area which flows seamlessly into the kitchen, featuring stainless steel appliances and white soft-close cabinets. On the third floor, you'll find the primary bedroom with a walk-in closet and ensuite bathroom with a double vanity and separate walk-in shower and water closet. Down the hall is the secondary bedroom with a generously sized closet and mir...
Stay informed with Livabl updates on new community details and available inventory.