































































Get additional information including price lists and floor plans.
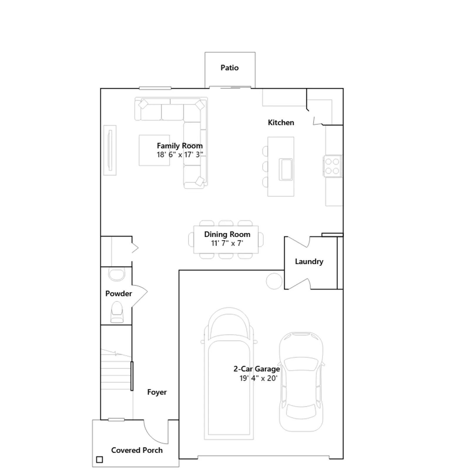
The first floor of this new two-story home is host to an open-concept layout that combines the kitchen with the living and dining areas, and an outdoor patio is easily reached off the main living space. Upstairs, five bedrooms surround a versatile loft, including the luxe owners suite, complete with a generous walk-in closet and en-suite bathroom.
Stay informed with Livabl updates on new community details and available inventory.