































Get additional information including price lists and floor plans.
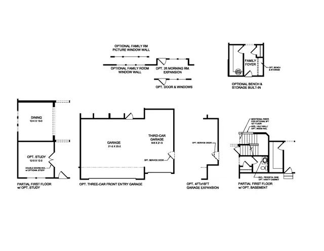
The Breckenridge by Fischer Homes offers a spacious and customizable design for modern living. The main level features an open kitchen with a walk-in pantry and options for a kitchen island, morning room expansion, and various door and window configurations. Additional options include a study, electric or internal fireplace with a hearth, and a built-in bench with storage in the family foyer. Customize further with a 4x16 garage expansion or a three-car front entry garage. Upstairs, all four bedrooms include walk-in closets, with the option to add a fifth bedroom or a private bath for Bedroom 4. The owners suite offers a variety of bath configurations, including a tub and separate shower, while a convenient second-floor laundry adds functionality. The Breckenridge combines thoughtful design with endless customization options to suit your lifestyle.
Stay informed with Livabl updates on new community details and available inventory.