


































































Get additional information including price lists and floor plans.
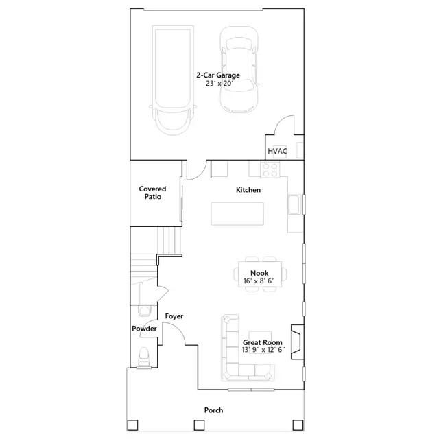
This two-story home is host to an inviting open-concept layout on the first floor combining the kitchen, living and dining areas to maximize interior space. A versatile loft offers a convenient shared living space on the second floor near two secondary bedrooms and the luxe owners suite, complete with a spa-inspired bathroom and walk-in closet.
Stay informed with Livabl updates on new community details and available inventory.