hero-image-0
Eclipse in Escondido
Sold
Sold
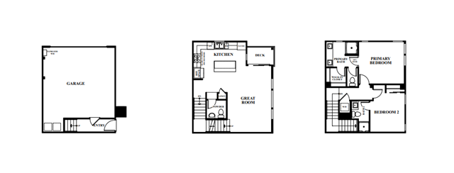
2
2
1
1,140
Lot 86 details
unit-banner-image
unit-banner-image
unit-banner-image
Lot 86 is now sold.