





















































Get additional information including price lists and floor plans.
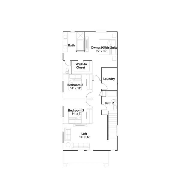
This new two-story home is host to an inviting open-concept floorplan on the first level with convenient access to a spacious covered patio, ideal for seamless entertaining and transitions throughout the week. All three bedrooms are located on the second floor, including the luxurious owners suite at the back of the home with a full bathroom and walk-in closet.
Stay informed with Livabl updates on new community details and available inventory.