






























































Get additional information including price lists and floor plans.
Images coming soon
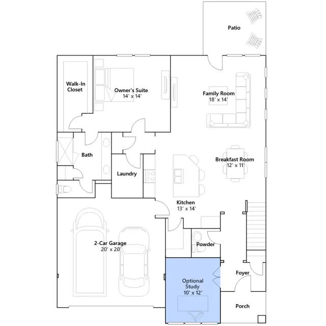
This new two-story home is optimized for gracious living. On the first floor, the owners suite is tucked in a back corner for added privacy. The open-plan kitchen, breakfast nook and family room open out to the patio, and a flex room can be made into an optional study. Upstairs are three secondary bedrooms and a loft.
Stay informed with Livabl updates on new community details and available inventory.