











Get additional information including price lists and floor plans.
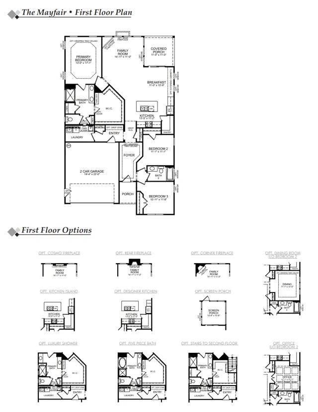
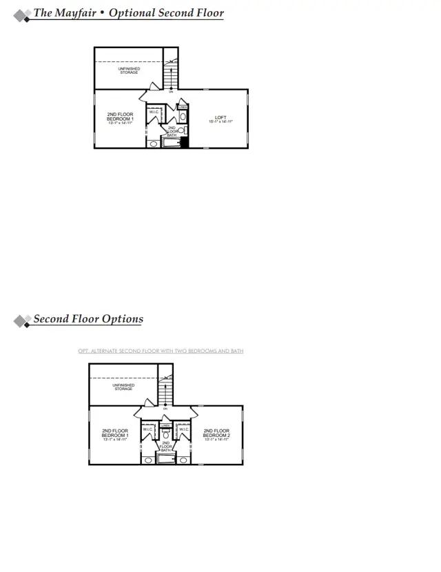
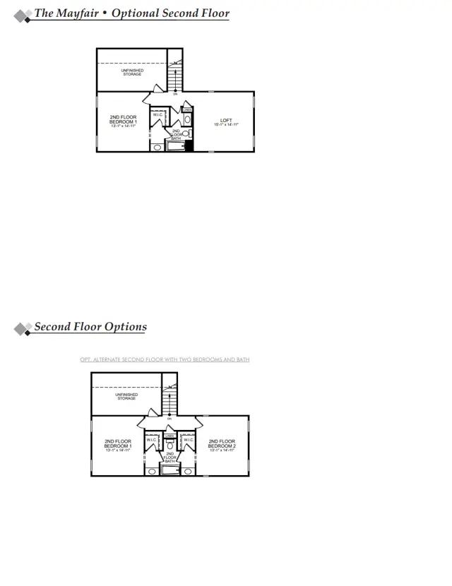
The Mayfair is a three bedroom two bath ranch style home with a first floor primary bedroom and split bedroom design an open layout with a covered rear porch a kitchen with an island and pantry plus a large laundry room. Options available to personalize this home include a formal dining room several primary bath options and an optional second floor with a bedroom bath and loft area.
Stay informed with Livabl updates on new community details and available inventory.