




















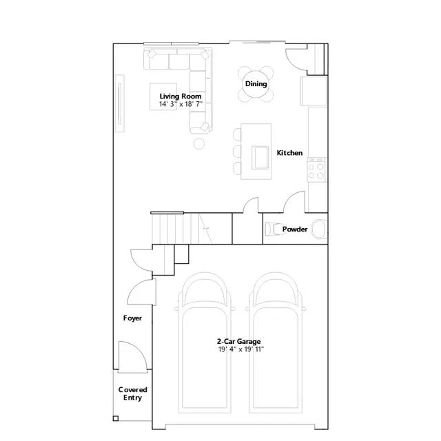
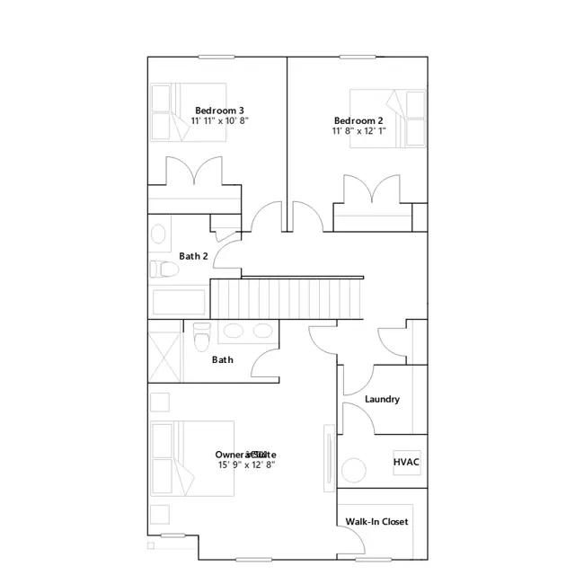
This new two-story home offers ample room to live and grow. An inviting open-concept layout on the first floor offers simple transitions and everyday multitasking, while two bedrooms and a lavish owners suite with a full bathroom and walk-in closet make up the second floor. A two-car garage completes the home.
Stay informed with Livabl updates on new community details and available inventory.