






































































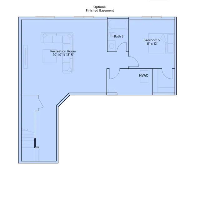
This new two-story home features a modern layout with an open-concept floorplan on the first level, consisting of a stylish kitchen, dining room and Great Room. Upstairs, four bedrooms surround a versatile loft area, including the luxe owners suite with direct access to an en-suite bathroom and walk-in closet. An unfinished basement on the lower level offers limitless possibilities, with the option to include a recreation room and additional bedroom.
Stay informed with Livabl updates on new community details and available inventory.