






















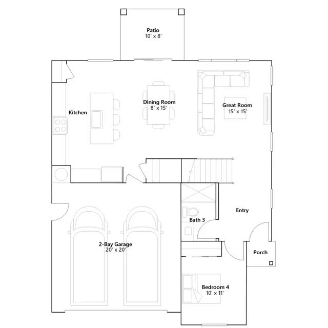
This new two-story home is designed with modern lifestyles in mind. A spacious and flexible open-concept layout combines the kitchen, living and dining areas with a nearby patio offering simple indoor-outdoor living. A convenient bedroom and full bathroom are located off the entry. On the second floor, three additional bedrooms surround a versatile loft, including the lavish owners suite with a full bathroom and walk-in closet.
Stay informed with Livabl updates on new community details and available inventory.