












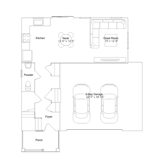
The first level of this two-story home is host to a spacious open floorplan shared between the kitchen, nook and Great Room. Sliding glass doors lead to the outdoor space for indoor-outdoor living and entertaining. All three bedrooms surround the versatile loft on the second floor, including the luxe owners suite. The owners suite features a restful bedroom, spa-like bathroom and walk-in closet.