













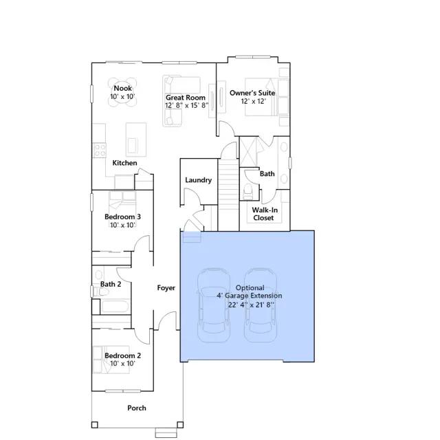
The only ranch-style design in the collection, this plan provides an open layout that highlights a contemporary kitchen overlooking the nook and Great Room. The luxurious owners suite with a spa-inspired bathroom is privately situated at the back of the home, while two more bedrooms can be found off the foyer.
Stay informed with Livabl updates on new community details and available inventory.