



























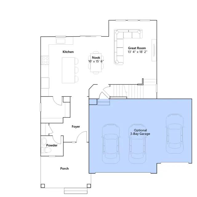
This two-story single-family home features an open first level where the kitchen, nook and Great Room share a footprint. The second level provides room for the entire family or guests with four bedrooms, including the sophisticated owners suite with an en-suite bathroom and a large walk-in closet.
Stay informed with Livabl updates on new community details and available inventory.