

























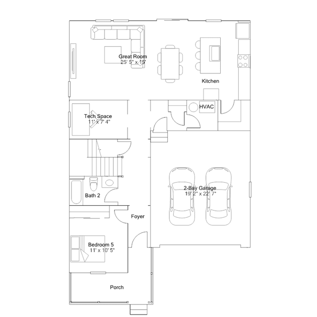
This two-story home showcases a generous open floorplan shared between the Great Room, dining area and kitchen, with sliding glass doors that lead to the outdoor space. A tech space is great for getting work done, while a secondary bedroom can be found off the entryway. Four more bedrooms occupy the second floor, including a luxe owners suite complemented by an en-suite bathroom and walk-in closet.