




























Get additional information including price lists and floor plans.
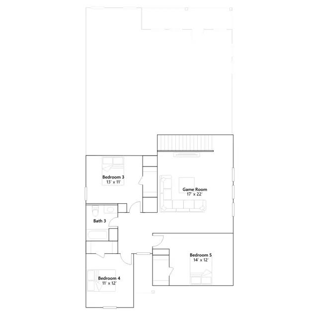
This new two-story home boasts a spacious and modern layout. At the back of the home on the first floor is a luxurious owners suite showcasing a full bathroom and walk-in closet, with a secondary bedroom located off the foyer. A convenient flex space is tucked away off the main living area, which features direct access to a covered patio for seamless indoor-outdoor transitions and entertaining. On the second floor, three additional bedrooms surround a versatile game room, ready for hosting guests or lounging at the end of the day.
Stay informed with Livabl updates on new community details and available inventory.