



































































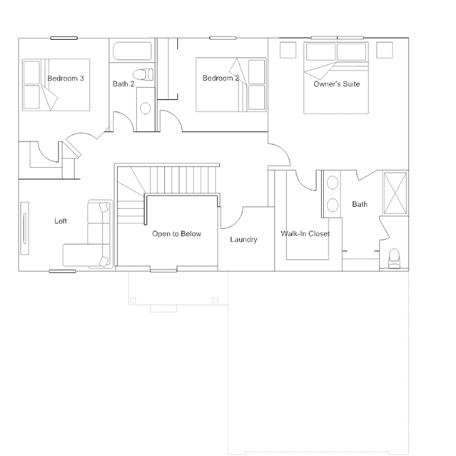
This new two-story home showcases an elegant modern design. The first floor features formal living and dining rooms for entertaining, an open-plan family room, kitchen and breakfast room for shared moments and a private study for at-home work or hobby projects. Upstairs are a spacious loft, two secondary bedrooms and an owners suite with a large walk-in closet and luxe bathroom.