hero-image-0

540 E. Imperial Ave.

By

D.R. Horton

   |   

Waypointe

Waypointe
Sold
Sold
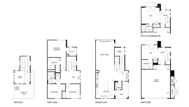
3
3
1
1,969
540 E. Imperial Ave. details
unit-banner-image
unit-banner-image
unit-banner-image
540 E. Imperial Ave. is now sold.
Check out available communities below.