




















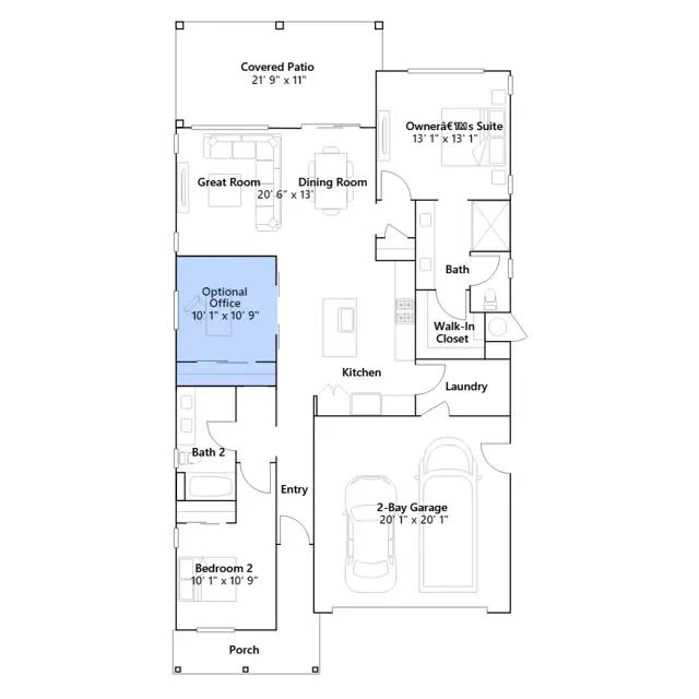
This single-story home features a versatile layout that perfectly uses available space. The open floorplan includes the Great Room, a dining room and stylish kitchen. There are two bedrooms, including the lavish owners suite equipped with an en-suite bathroom and walk-in closet. The covered patio located at the back of the home is the ideal location for relaxing after a busy day or simply enjoying the outdoors.
Stay informed with Livabl updates on new community details and available inventory.