hero-image-0

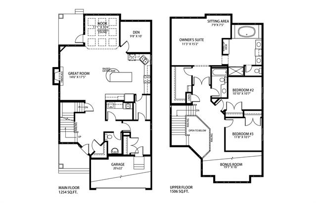
Hillary Plan

Walker Lakes
Sold
Sold
3
2
1
From 2,778
unit-banner-imageunit-banner-imageunit-banner-image
Hillary Plan details
Hillary Plan is now sold.
Check out available nearby plans below.