hero-image-0

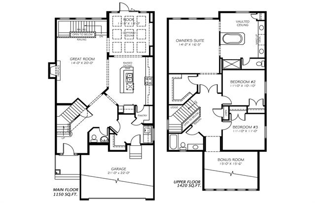
Gabriel Plan

Walker Lakes
Sold
Sold
3
2
1
From 2,570
unit-banner-imageunit-banner-imageunit-banner-image
Gabriel Plan details
Gabriel Plan is now sold.
Check out available nearby plans below.