New Homes for Sale
Articles
Professionals
Log in
Sign up
Photos 1
Videos 0
Map
Interactive floor plan 0
Virtual 0
Garneau 20 Plan
By
Landmark Homes
|
Walker Lakes Station
Community
Available homes
Get updates
Save
Request info
Request info
Community
Available homes
Request info
Get updates
Save
Request info
Walker Lakes Station
Get updates
Request info
Sold
Sold
3
2
1
From 1,448
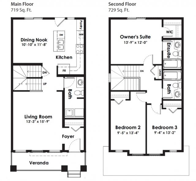
Garneau 20 Plan details
Address:
Edmonton, AB T6X
Plan type:
Detached Two+ Story
Beds:
3
Full baths:
2
Half baths:
1
SqFt:
From 1,448
Ownership:
Freehold
Interior size:
From 1,448 SqFt
Lot pricing included:
Yes
Garneau 20 Plan is now sold.
Check out available nearby plans below.
Similar 3 bedroom plans nearby
view all
Asset
Le Rêve
For sale
Beaumont
Sansa
Le Rêve
For sale
Beaumont
Archer 20
Le Rêve
For sale
Beaumont
Ascend 22
Le Rêve
For sale
Beaumont
Sansa II
Le Rêve
For sale
Beaumont
Archer 22
Le Rêve
For sale
Beaumont
Spirit
Le Rêve
For sale
Beaumont
Aspen 20
Le Rêve
For sale
Beaumont