hero-image-0

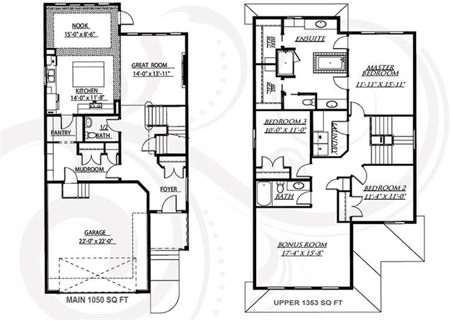
Portofino I A Plan

Timberidge at Edgemont
Sold
Sold
3
2
1
From 2,403
unit-banner-imageunit-banner-imageunit-banner-image
Portofino I A Plan details
Portofino I A Plan is now sold.
Check out available nearby plans below.