New Homes for Sale
Articles
Professionals
Log in
Sign up
Photos 1
Videos 0
Map
Interactive floor plan 0
Virtual 0
Unit 305
By
Westrich Pacific Corp
|
The View at Grandin City
Community
Get updates
Save
Request info
Request info
Community
Request info
Get updates
Save
Request info
The View at Grandin City
Get updates
Request info
Sold
Sold
3
2
1,214
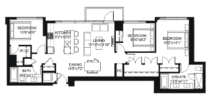
Unit 305 details
Address:
Edmonton, AB T5K 1K2
Plan type:
Suite
Beds:
3
Full baths:
2
SqFt:
1,214
Ownership:
Condominium
Interior size:
1,214 SqFt
Balcony size:
64 SqFt
Exposure:
North
Unit 305 is now sold.
Check out available nearby condos below.
Similar 3 bedroom condos nearby
view all
301
The Clifton
$3,800,900
Westmount, Edmonton
602
The Clifton
$4,350,900
Westmount, Edmonton
1101
The Clifton
$8,899,900
Westmount, Edmonton
502
The Clifton
$4,250,900
Westmount, Edmonton
902
The Clifton
$5,800,900
Westmount, Edmonton
302
The Clifton
$4,249,900
Westmount, Edmonton
402
The Clifton
$4,150,900
Westmount, Edmonton
202
The Clifton
$3,950,900
Westmount, Edmonton