hero-image-0

711 39 Street SW

The Hills at Charlesworth
Sold
Sold
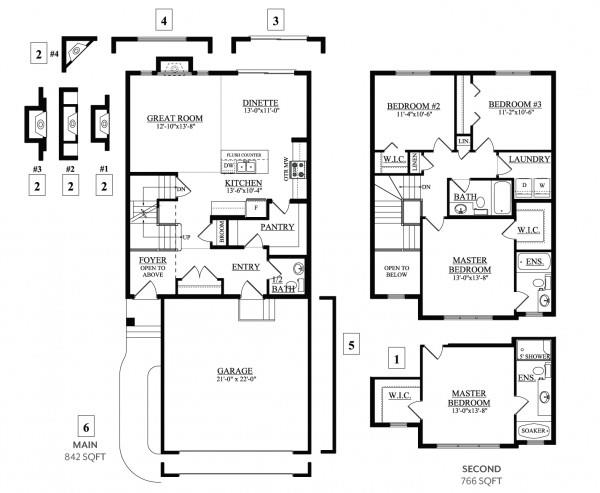
3
2
1
1,608
711 39 Street SW details
unit-banner-image
unit-banner-image
unit-banner-image
711 39 Street SW is now sold.
Check out available nearby homes below.